Pogledajte kako će izgledati nova autobuska stanica u Pančevu (FOTO)
“Pantransport” će izgraditi novu glavnu autobusku stanicu u Pančevu kao poslednju obavezu iz ugovora o javno-privatnom partnerstvu u oblasti javnog prevoza s Gradom Pančevom.
Lokaciju i sve neophodne dozvole, kao i uređenu saobraćajnu i komunalnu infrastrukturu obezbeđuje lokalna samouprava, dok će izgradnju nove autobuske stanice u potpunosti finansirati “Pantransport” iz sopstvenih sredstava.
Nova autobuska stanica u Pančevu biće izgrađena po najsavremenijim standardima u građevinarstvu, po principima održive gradnje, a sadržaće i niz sadržaja koji ne postoje na postojećoj autobuskoj stanici.
Glavnu dobrobit koju će imati svi građani Pančeva, jeste izmeštanje saobraćaja iz centra grada čime će se drastično smanjiti zagađenje vazduha, smanjiti gužve, a putnici će dobiti izuzetno visok nivo kvaliteta usluge u novoj autobuskoj stanici.
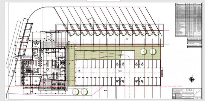
Nova autobuska stanica imaće posebno izgrađen parking za posetioce, i za zaposlene, kao i restoran.
U “Pantransportu” procenjuju da bi građevinsku dozvolu mogli da dobiju početka naredne građevinske sezone, kako bi u martu 2023. godine i pristupili izgradnji nove glavne autobuske stanice. Ukoliko ne bude nepredviđenih zastoja, nova autobuska stanica u Pančevu mogla bi biti puštena u rad na proleće 2024. godine.
Voja Savičić, direktor “Pantransporta” u ekskluzivnoj izjavi za naš portal predstavio je sadržaje koje će nova autobuska stanica imati, ali i brojne dobrobiti koje će ovo izmeštanje doneti putnicima.
- Izgradnjom autobuske stanice građani će dobiti novi, viši nivo usluge. Putnicima će na raspolaganju biti kompleks autobuske stanice i objekta za održavanje vozila s brojnim sadržajima koje sada nemaju. Stanica će se graditi po trenutno najsavremenijim standardima. Jedan od bitnih elemenata kompleksa autobuske stanice je da će u svom sastavu imati i parking, što ova stanica u centru nema i to je veliki problem za putnike koji dolaze kao pratioci. Ulaz i korišćenje stanice biće prilagođen i osobama sa invaliditetom - navodi Voja Savičić.
Nova autobuska stanica u Pančevu imaće 14 polaznih perona, poslovnu zgradu sa pratećim sadržajima, objekat za servis autobusa i izgrađenih sto parking mesta.
- Nova autobuska stanica sastoji se od jednog poslovnog objekta sa peronima i pratećim sadržajima i jedne nadstrešnice iznad perona i jedne nadstrešnice iznad dela restorana koji je planiran u okviru kompleksa gde su planirana i dva parkinga, oba sa kontrolisanim ulazom. Jedan parking će biti za posetioce a određeni broj mesta je predviđen i za osobe sa invaliditetom, a drugi parking je za zaposlene. U okviru kompleksa u planu je da se izgradi i poslovno-tehnički objekat koji će služiti za održavanje odnosno pregled vozila. Planirana je i interna stanica za snabdevanje autobusa gorivom. Svi sadržaji u kompleksu imaju glavni cilj – viši nivo kvaliteta usluge za putnike i optimizaciju poslovanja prevoznika - kaže direktor „Pantransporta“ Voja Savičić.
Kako kaže, na novoj glavnoj autobuskoj stanici biće 14 perona, što je manje nego sada, ali broj koji će u potpunosti biti u skladu s potrebama Pantransporta, s brojem polazaka i prevoznika s projekcijom da će se taj broj polazaka i širiti.
„Ovih 27 perona na trenutnoj autobuskoj stanici je previše, to je predimenzioniran broj s obzirom na broj polazaka. Sve je vezano za optimizaciju i uklapanje i drugih prevoznika i Pantransporta. Nije isključivo da jedan peron koristi jedan prevoznik, nego će na novoj glavnoj stanici jedan peron koristiti više prevoznika, kao što je uređeno i organizovano i na mnogo većim stanicama, kao što je na primer, BAS u Beogradu“, objašnjava dalje Savičić.
„Pantransport“: Putnici su nam na prvom mestu i viši nivo kvaliteta usluga
Najveći izdatak je izgradnja autobuske stanice, ali naš sagovornik napominje da će najveći poduhvat zapravo biti organizacija saobraćaja u gradskom saobraćaju.
- Mreža linija će pretrpeti određene izmene, posebno gradske linije 4 i 6 koje se završavaju odnosno počinju u centru grada. Najverovatnije ćemo produžiti trase tih gradskih linija tako da dođu do nove gradske autobuske stanice. I sve ostale linije gradskog i prigradskog saobraćaja će prolaziti kroz centar grada, pa nakon toga ići na lokaciju nove autobuske stanice. U svakom slučaju, putnici su nam na prvom mestu i posle veoma detaljne analize utvrdiće se nova mreža linija koja će biti isključivo u interesu putnika koji koriste usluge “Pantransporta”. Novom mrežom linija neće biti ugroženi ni putnici koji putuju za Beograd, jer će se u narednom periodu, a svakako pre otvaranja nove glavne autobuske stanice, naći najoptimalnije rešenje za prijem putnika i u drugim delovima grada - kaže Voja Savičić.
Uređenje autobuskih stajališta nije u nadležnosti prevoznika, ali Pantransport će nastojati da u naredne dve godine, do otvaranja nove autobuske stanice u saradnji sa gradom što veći broj stajališta uredi tako da putnici mogu u svim vremenskim uslovima da čekaju autobus. Već sada u gradu postoji desetak ekoloških “pametnih” stajališta koja za proizvodnju električne energije koriste sunčevu svetlost i ta dobijena energija se dalje koristi za LED rasvetu, za punjenje mobilnih uređaja i za funkcionisanje wi fi interneta, a na ovim stajalištima putnici su zaštićeni od sunca, kiše ili vetra.
- Utvrđivanje lokacija i izgradnja samih autobuskih stajališta je nadležnost Grada Pančeva, tako da ćemo u saradnji sa nadležnim službama grada odrediti da li je potrebno i uvođenje novih stajališta na novim trasama linija autobusa koje će biti utvrđene pre izgradnje nove glavne autobuske stanice u Pančevu - kaže Savičić.
Ni danas najveći broj putnika ne koristi postojeću glavnu autobusku stanicu
Savičić dodaje da putnici ništa ne gube izmeštanjem glavne autobuske stanice, jer brojke pokazuju da ionako najveći broj putnika ne koristi ni postojeću glavnu autobusku stanicu.
- Interesi putnika i njihova udobnost su nam na prvom mestu od prvog dana. Na primer linija Banatski Brestovac-Pančevo. Trasa linije će biti kao i do sada, do sadašnje autobuske stanice, ali će nastaviti i ulicom Svetog Save do nove glavne autobuske stanice u Pančevu. Na svim tim usputnim autobuskim stajalištima biće omogućen prijem i otprema putnika. I sami smo svedoci da i sad trenutno veliki broj putnika gradskih i prigradskih linija čeka autobus na usputnim stajalištima, a ne na glavnoj autobuskoj stanici. Najveći broj putnika ni sada ne dolazi na glavnu autobusku stanicu. Broj putnika koji koriste autobusku stanicu su putnici koji koriste naše usluge na liniji za Beograd i putnici ostalih prevoznika koji tranzitiraju kroz Pančevo - kaže Voja Savičić.
Pantransport je značajno doprineo da se kvalitet vazduha u Pančevu popravi i taj ekološki momenat uopšte nije zanemarljiv. Putnici se prevoze najsavremenijim ekološki prihvatljivim autobusima, od kojih je određeni broj i na metan.
- U voznom parku imamo 60 potpuno novih autobusa sa ekološki prihvatljivim motorima, a osam vozila imaju agregat sa pogonom na prirodni gas. Ekološka slika grada je znatno promenjena po pitanju kvaliteta vazduha, s obzirom da je kompletan vozni park nov. Kompleks nove autobuske stanice biće građen po principa održive gradnje i značajno će ulepšati sliku tog dela grada, ali i celog Pančeva uopšte - kaže naš sagovornik.
Nova glavna autobuska stanica i organizacija sadržaja u celom kompleksu, kad budu izgrađeni, značajno će smanjiti i troškove “Pantransporta” kad je u pitanju takozvana nulta kilometraža.
- Nulta kilometraža podrazumeva one kilometre kad vozila dolaze prazna do autobuske stanice i garaže i odlaze po završetku rada. Novom organizacijom na budućoj glavnoj autobuskoj stanici smanjiće nam se broj tih nultih kilometara koje sada imamo. Na novoj stanici ćemo imati sve na jednom mestu, ukoliko je potrebna neka brza intervencija ili sitnija popravka da vozilo može da se u što kraćem vremenu osposobi i vrati u saobraćaj. Očekujemo i da će se bolje optimizovati sam proces rada kada je u pitanju korišćenje autobusa manjeg kapaciteta, do 30 sedišta. U praksi se dešava da u smeni od nekih pet polazaka, dva polaska mogu da se realizuju sa mini busem, ne mora da se šalje autobus. Sada zbog trenutne odvojenosti objekata ne možemo to da izvedemo, ali kad sve bude u okviru jednog kompleksa to će omogućiti brze i efikasne izmene i olakšati naše funkcionisanje kao prevoznika - objašnjava dalje Savičić.
Obaveza izgradnje nove autobuske stanice poznata već godinama
Prilikom potpisivanja javnog ugovora za dodelu koncesija za javni prevoz putnika na teritoriji grada Pančeva, u novembru 2019. godine, Pantransport je preuzeo i obavezu izgradnje nove autobuske stanice.
- Rok za izgradnju i puštanje u rad autobuske stanice počeće da teče nakon obezbeđivanja svih dozvola i saglasnosti za izgradnju od strane naručioca to jest Grada Pančeva. Naručilac se obavezao da će obezbediti sve dozvole i saglasnosti, i da će izgraditi prateću saobraćajnu i komunalnu infrastrukturu, kako bi se proces izgradnje autobuske stanice odvijao u skladu sa definisanom dinamikom. Trenutno smo u početnoj fazi pripreme celokupne dokumentacije. Samo izmeštanje autobuske stanice znači najveći deo posla za samog prevoznika kada je u pitanju mreža linija na teritoriji grada Pančeva. Naši sugrađani nemaju razloga za brigu zbog izmeštanja autobuske stanice, jer svi sadržaji u gradu biće im i dalje dostupni. Neke gradske linije će sigurno pretrpeti promene, ali u suštini koristiće se sva gradska stajališta koja se koriste i sada za prijem putnika - kaže direktor Savičić.
Sva dokumentacija, izmene Planskih dokumenata i procedure do dobijanja građevinske dozvole i ispunjavanja uslova od strane Grada Pančeva zahtevaju određeno vreme i usvajanje od strane gradskog veća i Skupštine grada.
- Potrebno je i da se završi prateća saobraćajna i komunalna infrastruktura s obzirom da će ceo taj potez gde će se nalaziti nova autobuska stanica pretrpeti rekonstrukciju. Potrebno je da se urade prilazni putevi kako bi mogao autobuski saobraćaj da se odvija bez problema. Moraju prvo da se obezbede saobraćajno-tehnički uslovi kako bi uopšte bio omogućen rad autobuske stanice nakon izgradnje. U cilju ispunjenja ugovorne obaveze koju smo preuzeli je izgradnja nove glavne autobuske stanice koja bi u idealnim uslovima mogla da bude otvorena u aprilu 2024. godine - zaključio je Voja Savičić.
Vlasnička struktura „Pantransporta“ je sada promenjena i vlasnik 64,66% kapitala je “Saga trans”, 32,33% Trans jug, a 3% Grad Pančevo.
Prema projektu, vrednost izgradnje nove autobuske stanice sa pratećim objektima i uređenjem okoline biće 3.443.000 evra. Trošak izgradnje u potpunosti finansira „Pantransport“.
Potpisivanjem ugovora s gradom Pančevom 2019. godine Pantransport se obavezao da nabavi novih 60 autobusa i izgradi novu autobusku stanicu. Novi autobusi nabavljeni su i isporučeni već u junu 2020. godine od kada Pančevci imaju najmoderniji javni prevoz u Srbiji. Uveden je i savremeni sistem naplate karata, a izgradnjom nove autobuske stanice kvalitet usluga u javnom prevozu biće ubedljivo najbolji u celoj Srbiji i regionu.